METRAŻ CAŁKOWITY: 98,38 m2
WYSOKOŚĆ CAŁKOWITA: 5m
TARAS: 8,4 m2
POZIOM PIERWSZY:
– Hol: 7,88 m2
– Łazienka: 6,17 m2
– Kuchnia: 6,65 m2
– Salon: 26,44 m2
– Jadalnia: 8,64 m2
– Schowek: 3,45 m2
POZIOM DRUGI:
– Antresola: 39,15 m2


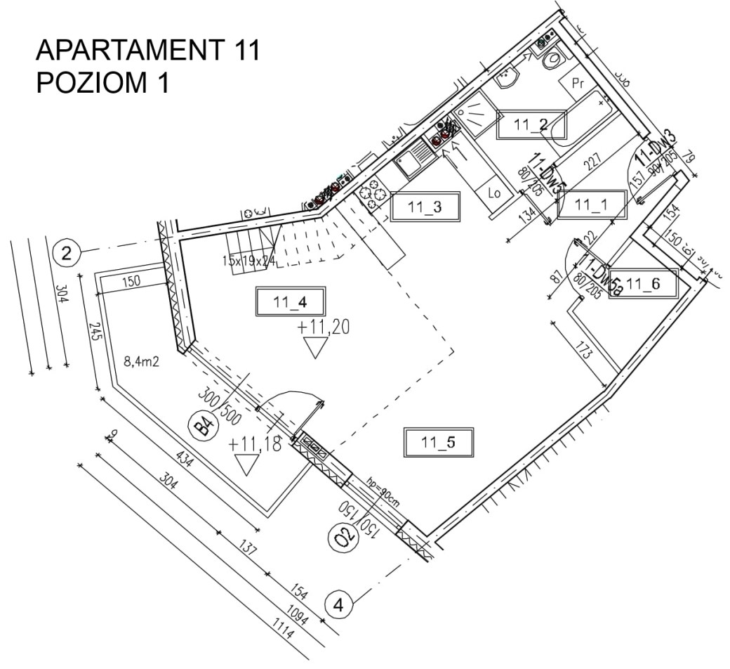
METRAŻ CAŁKOWITY: 98,38 m2
WYSOKOŚĆ CAŁKOWITA: 5m
TARAS: 8,4 m2
POZIOM PIERWSZY:
– Hol: 7,88 m2
– Łazienka: 6,17 m2
– Kuchnia: 6,65 m2
– Salon: 26,44 m2
– Jadalnia: 8,64 m2
– Schowek: 3,45 m2
POZIOM DRUGI:
– Antresola: 39,15 m2

