METRAŻ CAŁKOWITY: 92,11 m2
WYSOKOŚĆ CAŁKOWITA: 5m
TARAS: 18,1 m2
POZIOM PIERWSZY:
– Hol: 8,08 m2
– Łazienka: 5,67 m2
– Kuchnia: 8,73 m2
– Salon: 23,26 m2
– Jadalnia: 8,81 m2
POZIOM DRUGI:
– Antresola: 37,56 m2


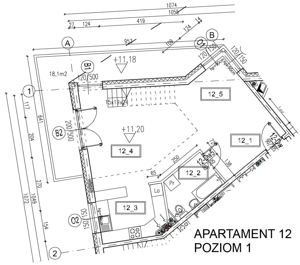
METRAŻ CAŁKOWITY: 92,11 m2
WYSOKOŚĆ CAŁKOWITA: 5m
TARAS: 18,1 m2
POZIOM PIERWSZY:
– Hol: 8,08 m2
– Łazienka: 5,67 m2
– Kuchnia: 8,73 m2
– Salon: 23,26 m2
– Jadalnia: 8,81 m2
POZIOM DRUGI:
– Antresola: 37,56 m2

